业主需求
设计来源于生活高于生活,只做生活中的艺术设计。北欧的简约主张“少即是多”,去掉多余的装饰,主张功能至上和人性化设计,体现出一种简约而不简单的设计理念。

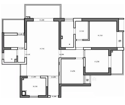
平面布置图
原始户型比较方正,业主希望改造的大格局不变,能提升空间利用率,增加收纳空间,设计师通过对色彩和灯光的变换重新营造一种装饰风格,让家焕然一新。

空间效果图
客厅与阳台打通,以造型垭口为隔断,扩大公领域使用面积,同时增加了采光。

阳台,客厅和餐厅融为一体,整个空间更通透明亮开阔。

主卧选购原木家具,质朴贴近自然,把更衣间和主卫独立分开,在收纳上进行细分,大大增加收纳能力。

备注:本案例套餐舒适包,舒适厨房X1,舒适卫浴X1。

本案设计师:许博
5年以上设计经验
擅长风格:新中式、北欧、现代
个人简介:从业经验:5年设计
职务:主任设计师
擅长风格:现代 简约 轻奢 北欧 简欧 新中式等。
设计理念:设计来源于生活高于生活,只做生活中的艺术设计。
擅长风格:新中式、北欧、现代
个人简介:从业经验:5年设计
职务:主任设计师
擅长风格:现代 简约 轻奢 北欧 简欧 新中式等。
设计理念:设计来源于生活高于生活,只做生活中的艺术设计。







