2020新品「寒阳暮歌」:冬日初阳的朦胧与明媚

冬日初阳的朦胧与明媚
品质家居
从严选好板材开始

冬天早晨的阳光
找到
属于自己的
个性艺术创作
展示方案详情

?
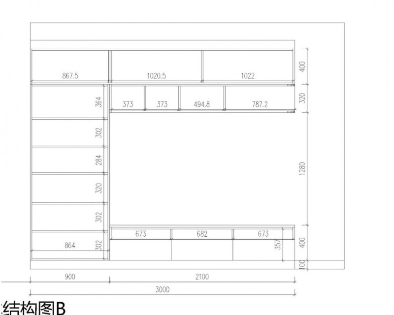
1、“厅”

作为主要储存区域,尤为重视其储存、格局、功能,定制衣柜完美的满足了所有需求,不论格局,美观、功能上,都能根据实际情况量身定做最适合的衣柜。
详细材料清单列表






五金使用情况
铰链:华杰二段力铰链
滑轨:华杰滑轨把手:哑光黑色拉手
?
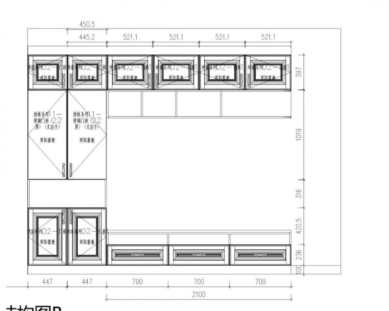
2、“书”

以偃意、惬意、舒心的设计理念出发,并兼顾生活格调,个人品味,一定是最优设计,作为居家办公的重要场所,书柜的设计采用了现代简约设计,抛弃线条、造型上的视觉冲击,打造温馨,舒适的办公环境。
详细材料清单列表






五金使用情
铰链:华杰二段力 14个
把手:7个把手
铰链:华杰二段力 14个
把手:7个把手
3、“鞋”

定制型鞋柜,包含性强,针对特殊户型,难题户型,并很好的解决了这类难题,根据需求量身定做尺寸结构,生活实用体验上更为舒适。
详细材料清单列表



定制型鞋柜,包含性强,针对特殊户型,难题户型,并很好的解决了这类难题,根据需求量身定做尺寸结构,生活实用体验上更为舒适。
详细材料清单列表


五金使用情况
铰链:华杰二段力 19个
把手:8个
4、“餐”

定制型鞋柜,包含性强,针对特殊户型,难题户型,并很好的解决了这类难题,根据需求量身定做尺寸结构,生活实用体验上更为舒适。
详细材料清单列表



定制型鞋柜,包含性强,针对特殊户型,难题户型,并很好的解决了这类难题,根据需求量身定做尺寸结构,生活实用体验上更为舒适。
详细材料清单列表


五金使用情况
铰链:华杰二段力 19个
把手:8个
5、“主”

作为主要储存区域,尤为重视其储存、格局、功能,定制衣柜完美的满足了所有需求,不论格局,美观、功能上,都能根据实际情况量身定做最适合的衣柜。
详细材料清单列表






五金使用情况
轨道:华杰三节路轨2付
铰链:华杰二段力 16个
把手:8个
6、“”次

定制衣柜完美的满足了所有需求,不论格局,美观、功能上,都能根据实际情况量身定做最适合的衣柜。
详细材料清单列表




定制衣柜完美的满足了所有需求,不论格局,美观、功能上,都能根据实际情况量身定做最适合的衣柜。
详细材料清单列表



五金使用情况
铰链:华杰二段力 12个
轨道:华杰阻尼轨2付
把手:6个
7、“阳”

定制阳台柜,使狭小的阳台空间完美利用,不仅便于生活,更美观视觉,生活琐碎物品的收纳上效果极佳,北墙通顶柜体隔层设计,摆上几盆盆栽,种上几盆绿植,既环保又惬意。
详细材料清单列表






五金使用情况
铰链:华杰二段力 4个
把手:2个气支撑:2个
8、“厨”

良好的材质是质量的保证,作为衣、食、住、行,中的食,我们对其保有严苛的要求。美观、实用、健康的厨房环境是当今社会人们的着重点,以此为基点的设计理念,一定更符合严格的您。
详细材料清单列表








五金使用情况
铰链:华杰二段力 26个
把手:12个
台面:石英石QS7701
铰链:华杰二段力 26个
把手:12个
台面:石英石QS7701







